OBRA NUEVA DE EDIFICIO CON DOS VIVIENDAS DE 150M²

Fecha: 2022-03-10 - 2022-09-15 Ubicación: Calle de Ceferino Ávila, Madrid, España

Descripción

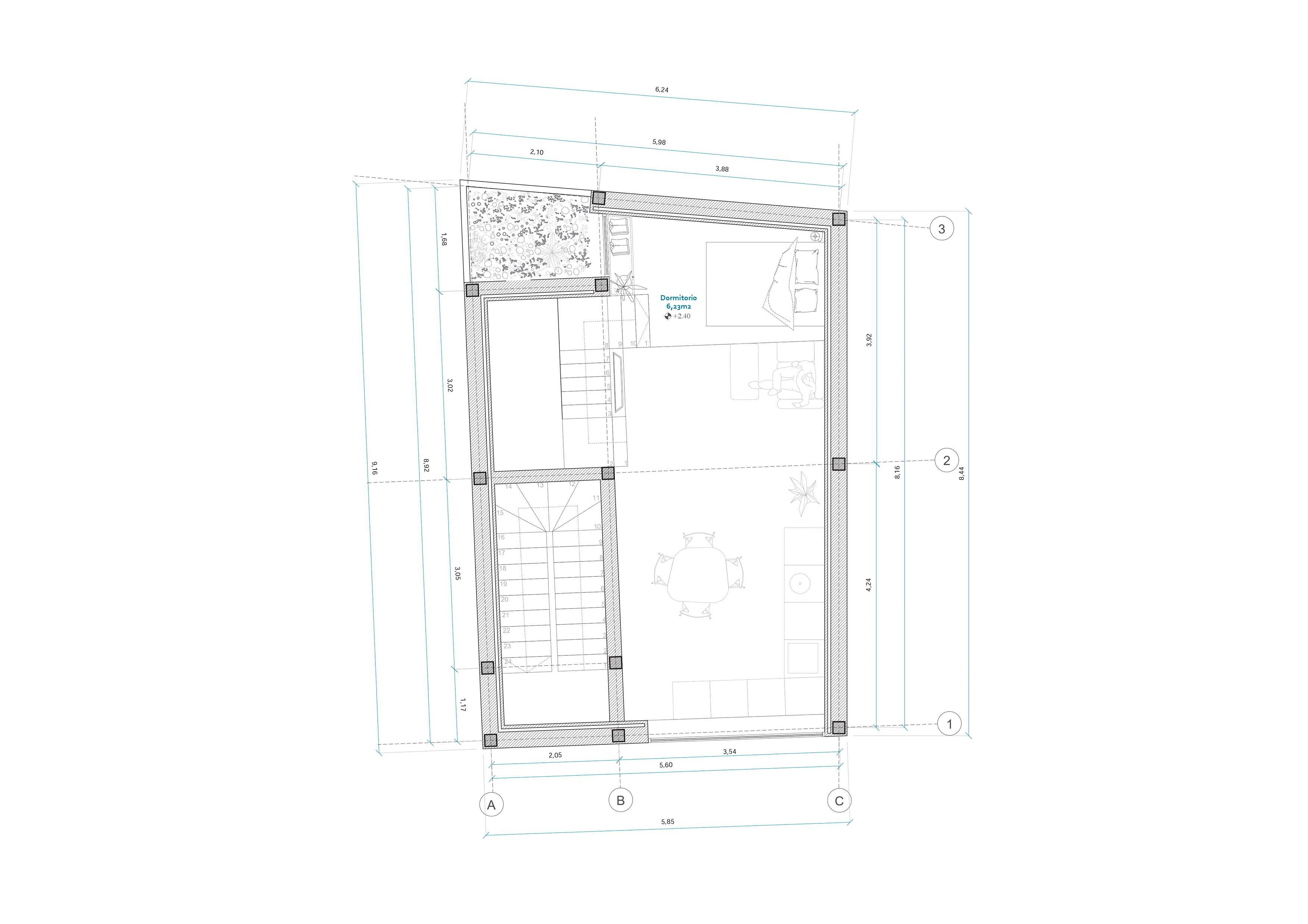
El proyecto fue dirigido hacia dos hermanas que contaban con una parcela en la que querían construir una vivienda para cada una. La idea fue la de incorporar una vivienda por planta, en las cuales el espacio quedaría diáfano a excepción del baño, y la habitación quedaría en un altillo también abierto al resto de la vivienda.

Detalles del Proyecto

  • Cliente: IRENE E ITZIAR
  • Fecha: 2022-03-10 - 2022-09-15
  • Ubicación: Calle de Ceferino Ávila, Madrid, España
  • Etiquetas:
    Tramitaciones técnicas Proyectos de obras y reformas Proyectos de actividades Proyectos de instalaciones Dirección de obra Otros trabajos técnicos