LABORATORIO ALODIA FAMCÉUTICA DE 180M2 EN ALCOBENDAS

Fecha: 2022-10-26 - 2022-12-23 Ubicación: Avenida de la Industria, 34, Alcobendas, España

Descripción

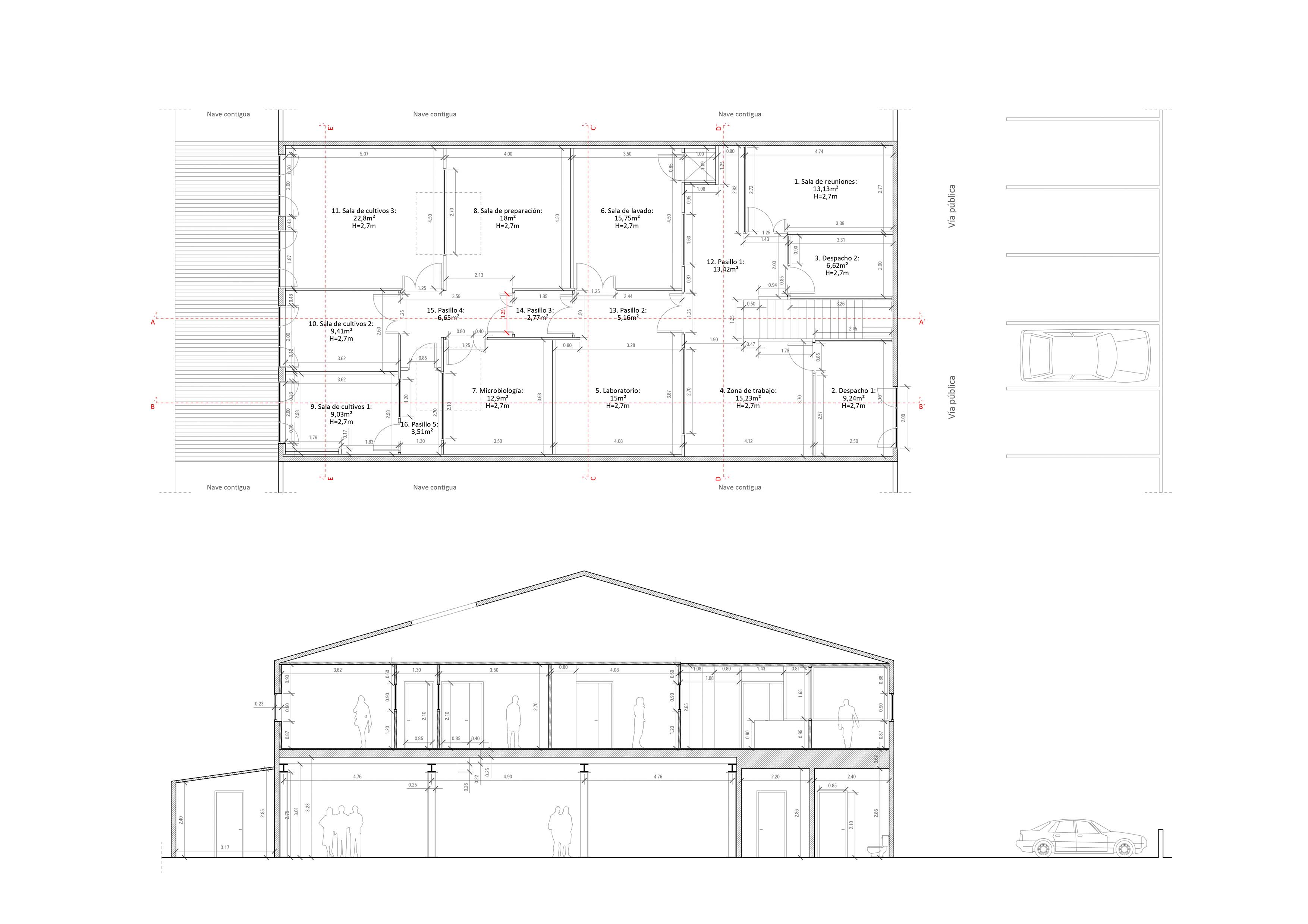
El primer paso del proyecto fue la legalización de la planta primera que incorporaba la nave industrial. Mientras el ayuntamiento concedía la legalización, fuimos diseñando los diferentes espacios del laboratorio junto con Alodia Farmacéutica.

Tras la elaboración completa del proyecto, lo presentamos e iniciamos las obras contando con todos los requisitos de sanidad y características técnicas de las diferentes salas del laboratorio.

Detalles del Proyecto

  • Cliente: ALODIA FARMACÉUTICA
  • Fecha: 2022-10-26 - 2022-12-23
  • Ubicación: Avenida de la Industria, 34, Alcobendas, España
  • Etiquetas:
    Tramitaciones técnicas Otros trabajos técnicos Proyectos de actividades Proyectos de obras y reformas Proyectos de instalaciones Dirección de obra